
大庆市中医医院对大庆市中医医院地下生活储水罐维修改造工程项目进行招标采购,欢迎符合资质的供应商报名参加。
报名电话:0459-5865190,13845986369
联系人:李琳杨兴
报名截止日期:2018年07月06日11:00
报名地点:大庆市中医医院物资采购中心116室
物资采购中心
2018年07月04日
大庆市中医医院地下生活储水罐维修改造工程招标(竞争性谈判)文件
招标人:大庆市中医医院
编制时间:2018年07月04日
竞争性谈判文件目录
第一部分 供应商须知
第二部分 项目需求
第三部分 招标(竞争性谈判)响应文件
第四部分 相关格式样本
第一部分 供应商须知
本项目招标按照《中华人民共和国招标、投标法》等有关法律、法规和规章的规定,通过公正、公平、公开的招标方式选定承包人。
一、招标方式:招标(竞争性谈判),但必须满足三家以上(含三家)
二、项目编号:WX201803
三、项目名称:大庆市中医医院地下生活储水罐维修改造工程。
四、项目地址:大庆市中医医院院内, 详见“项目需求”。
五、质量要求:质量符合国家标准或相关标准。
六、质保期:质保期为一年,一年内免费维护维修。供应商承诺质保期高于一年以上按供应商承诺执行。
七、投标报价:谈判报价应包括成本费用、运杂费用、利税、施工费、售后服务费以及一切措施费用。
八、交工验收时间:成交通知书发出之日起 7 日内交货验收完毕。
九、验收地点:大庆市中医医院
十、评定成交原则:采取招标(竞争性谈判),根据符合采购需求、质量、服务、报价、售后等综合评定确定成交供应商。
本项目评标委员会享有定标权。
十一、采购合同:成交通知书发放之日起3日内由成交供应商与采购单位签订,合同双方签订并备案后生效。
十二、付款方式:工程竣工验收合格,且投入运行正常后,付至结算价的95%,余款5%待保修期满(1年),无质量争议一次付清。
十三、违约责任
1、供应商提出的投标文件未对招标文件作出实质性响应的。
2、提供虚假材料谋取成交的。
3、与采购单位、其他供应商或采购科室恶意串通的。
4、向采购单位、采购科室行贿或提供其他不正当利益的。
5、其他按采购法规定谈判无效的条件。
供应商出现以上行为之一的,谈判无效,情节严重的,列入不良行为记录名单,在一至三年内禁止参加我院采购活动,或由有关部门给予相应处罚,造成损失的,应承担赔偿责任。
十六、招投标信息。
1、投标报名截止时间: 2018年 07月 10日 11:00 。
报名地点:大庆市中医医院物资采购中心116室
2、招标(谈判)会:
招标(谈判)时间:2018年 07月 10日 14:00,供应商应在13:45前完成签到,否则按放弃投标处理, 招标(谈判)时间如有变动,提前通知。
招标(谈判)地点:大庆市中医医院机关楼三楼会议室。
3、招标单位:大庆市中医医院
地 址:大庆市萨尔图保健路8号
联系人:李琳 杨兴
电话:0459-5865190 13845986369
十七、开标及评标。
(一)开标。
1、招标方按招标文件规定的时间、地点主持竞争性谈判。开标会议在监督单位的监控下由招标方组织并主持,评标委员会成员、投标单位代表及有关工作人员参加。
2、投标方派代表参加开标会议,并应签名报到,以证明其出席开标会议。投标方法定代表人或委托代理人应持有效身份证明参加会议。
3、开标时,由投标人或法人代理人现场提交投标文件。
(二)评标。
招标(谈判)响应文件初审。
1、技术谈判首先对技术文件进行审议,然后与供应商进行技术谈判,同时澄清有关问题。
2、商务谈判:对谈判报价进行审议,并与供应商进行以价格为主的一轮或多轮商务谈判。
3、评标原则:
采取招标(竞争性谈判),根据符合采购需求,质量和服务等综合评定,确定成交供应商。
评标严格按照招标文件的要求和条件进行。在项目预算范围内综合考虑以下因素:
材料质量、施工质量、技术方面;投标者的资信情况和履约能力;报价;其他。
本项目评标委员会享有定标权。
4、成交结果公布:预成交结果确定后,我院将予以公布并挂医院官网公示。
十九、本文件由大庆市中医医院物资采购中心负责解释。
第二部分 项目需求
一、工程量清单:
|
工程量清单 |
||||||||
|
项目名称:大庆市中医医院地下生活储水罐维修改造工程 |
项目编号:WX201803 |
|||||||
|
序号 |
项目编码 |
项目名称 |
项目特征描述 |
计量 单位 |
工程量 |
|||
|
|
|
整个项目 |
|
|
|
|||
|
1 |
031006015001 |
水箱 |
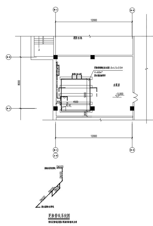
1.名称:拆除原不锈钢水箱更换为玻璃钢生活水箱(原水箱基础利旧) |
台 |
1 |
|||
|
2 |
031001005001 |
铸铁管 |
1.名称:拆除安装铸铁管线 |
m |
15 |
|||
|
3 |
031003003001 |
焊接法兰阀门 |
1.名称:法兰截止阀拆除并安装 |
个 |
2 |
|||
|
4 |
031003008001 |
除污器(过滤器) |
1.名称:Y型过滤器拆除并安装(过滤器利旧) |
组 |
1 |
|||
|
5 |
031003013001 |
水表 |
1.安装部位(室内外):室内 |
组 |
1 |
|||
|
|
|
分部小计 |
|
|||||
|
|
|
措施项目 |
|
|||||
|
6 |
031301017001 |
脚手架搭拆 |
|
项 |
1 |
|||
第三部分招标(竞争性谈判)响应文件
一、供应商应编制招标(竞争性谈判)响应文件并带到谈判现场,所有文件必须盖公司公章,并按要求签字。
二、招标(竞争性谈判)响应文件构成:
(一)、基本文件:作为必要条件,必须提供,否则谈判无效。
1、营业执照复印件,经营范围需涵盖此次项目。
2、安全生产许可证复印件。
3、法定代表人资格证明书(法定代表人参会时提供)或法定代表人授权委托书原件(法定代表人未参加会时提供)
4、参会的法人身份证复印件或委托代理人身份证复印件。参会人身份证原件带至谈判会场。原件及复印件均未提供者,谈判无效。
(二)技术文件
由供应商针对医院标志牌项目采购项目分别提出品牌、规格、型号、材质等组成明细。
1、产品主要技术指标、参数、型号及性能的详细说明等技术资料。
2、通过国家质量检测的合格证明材料。
3、按国家政策要求3C认证的,须提供3C认证证书。
4、生产厂家的有关资料证明;产品(设备)有效检测和鉴定证明或质量合格证书、质检报告、专利证书等。
5、其他技术文件。
(三)商务文件
1、交货日期、质保期、付款方式、售后服务等为本项目必要条件,必须响应,否则谈判无效。
2、售后服务承诺书。 (必须提供,否则谈判无效)
3、谈判报价明细表, (必须提供,否则谈判无效)。
4、其他商务文件。
(四)投标文件制作
1、投标文件准备正本1份,副本4份。
第四部分 相关格式文本
竞争性谈判投标文件(封皮)
项目名称:大庆市中医医院地下生活储水罐维修改造工程
项目编号:WX201803
投标人(公章):
法人代表或授权代理人(签字):
投标日期: 年 月 日
法定代表人授权委托书(格式一)
大庆市中医医院:
本授权书声明: 为(委托单位全称)的法定代表人。代表本单位授权本单位( )为本公司合法代理人,就贵方组织的有关大庆市中医医院路灯维修项目的招标(竞争性谈判)及合同的签订、执行、完成,以本单位名义处理一切与之有关得事宜。
代理人无转委托权。
本授权书于 年 月 日签字生效,特此声明。
委托单位: (公章) 法定代表人:(签字或盖章)
签发日期: 年 月 日
附:
1、身份证号码:
2、委托代理人签名: 年 月 日
3、营业执照编号:
说明:
1、委托代理人必须为参与本项目供应商本单位的人员,且供应商只能授权1人为本单位合法的委托代理人。否则代理无效。
2、授权委托代理人根据授权范围,以委托单位的名义签订合同,并将此委托书提交给对方作为合同附件。
3、委托书内容填写要明确,文字要工整清楚,涂改无效。
4、委托书不得转借、转让、不得买卖。
5、只能指定一个委托代理人授权委托代理人参与本项目谈判。
法定代表人资格证明书(格式二)
单位名称:
地 址:
姓名: 性别: 年龄: 职务:
该同志系我单位的法定代理人。负责我单位参加的
项目的投标活动,以及合同的签订、执行、完成,以本单位名义处理一切与之有关得事宜。
特此证明
供应商全称:(盖章)
年 月 日
地下室水箱调整